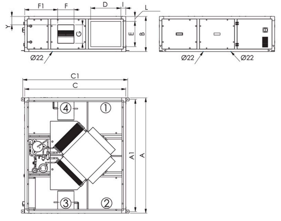
• Pressitud alumiiniumprofiilraam
• Sandwich-tüüpi täitepaneelide paksus 23 mm
• Sünteetilised volditud filtrid efektiivsusklassis ISO 16890 KAME 55% mõlemal õhuringlusel, suur pind
• Valikuline ePM1 70% filter.
• Alumiiniumplaatidega ristvoolu õhk-õhk taaskasutusseade
• Pööratav R410A jahutusahel hermeetilise sisse-välja kompressoriga, soojusvahetusspiraalid vasktorude ja alumiiniumribidega
ja elektrooniline paisuventiil.
• Tsentrifugaalventilaatorid kahe sisselaskeava ja otse ühendatud elektrimootoriga fikseeritud kiirusel
• Sisemine elektripaneel koos reguleerimis- ja juhtpaneeliga




Reviews
There are no reviews yet.